
Highly skilled cabinet makers. (Custom design and engineering) The Engineering of this piece is structurally amazing. -- 20ea. monitors ...5ea. monitors stacked per side for a full 20' video tower.
Note: We used climbing gear to tilt this unit upright.
Cabinetry is our forte.
Aircraft interior refreshment unit.

Local business Employees lunch/break room area.

We can cut anything from a drawing. (DXF)
Lettering, Signs, Cabinet parts, Plexi, Aluminum, and It still amazes me what it can do!

Plexi Fabrication.
Gave 44ea. to Ohio hospitals in need at the beginning of the pandemic

Non-dimensional lumber made into a dimensional unit

Showing it with all 20 monitors in place.

Aluminum finish millwork stand,
CNC cut out 3d logo with red printed images one milk plexi with standoffs.
Aluminum shaped stand.

Hold 3ea. monitors for presentation video
This unit is held together with ratchet straps.
Easy to take apart and put in a crate.

CNC cut out sign, car painted finish, with white plexi backed for lighting.
All in house too!

6ea fold-able wall panels. 16' tall. Fabric is lit with up-lighting.

This unit is held together with ratchet straps.
It is 12 feet Dia.

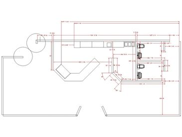
We measured open space, when back to the drawing board to lay out for every trade to build this shop.

This drawing went to the framer.
I use this to lay out all the cabinetry.
Other went to the plumber, Electrician, and General Contractor.

Very cool layout. Very efficient work flow for servers.

Interior Laminated, fixed shelves, and Storage below

Used a jig to cut drywall opening

Note: The gold trim around unit.
Plus, floating shelves have under lighting for cool look.
Send us a message, or call us for a quote. Use our contact form to tell us more about your project, and we will connect you with the services to fit your needs. Or Just Call Us.
Copyright © 2018 Wirth Cabinet Co. - All Rights Reserved.
Powered by GoDaddy